Build cradle

Post Reply
User avatar
frederick
Posts: 85
Joined: Mon Oct 01, 2018 9:05 pm
Location: san jose

Build cradle

Post by frederick » Thu Jul 11, 2019 2:38 am

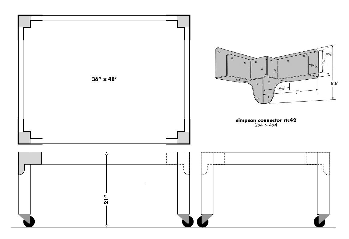
Was asked about mine, here’s what I did...

Wheels are critical, don't cheap out...they need to be big enough to roll over garage floor irregularities AND support at least 25% of the 900lbs-ish / 408kg finished weight. You will need to have some 1 x _ blocking incorporated or standing by to suspend the chassis off the cradle to allow finessing the body shell lips under the outside frame rails. I have 2—1" x 4" x 5' running front to back spreading out the load.

Anyone needing more T4 build info (at least my interpretation of the guide) friend me on Facebook frederickfortune1 for access to my build pic folder.
Attachments
D88AEAE4-FD0B-4A79-AF01-C1B5616BB94A.jpeg

Post Reply